Detektor plynu SC-CH4
Detektor plynu SC-CH4

Detektor plynu pro měření spalitelných plynů např.
zemní plyn, svítiplyn, propanbutan, acetylén,
ředidla, alkoholy), v prostorech
s prostředím s nebezpečím výbuchu plynu a
v hlubinných dolech s výskytem výbušné atmosféry.
Výhody detektoru SC-CH4
Aplikovatelný v průmyslu a také v hlubinných dolech
Analogové a digitální výstupy připojitelné k DSC
Důlní aplikace se systémem DPS
Ověřená životnost více jak 10 let
Bezúdržbový vyjma čištění od prachu
Variabilní připojení a vybavení
Jednoduchá montáž
Kalibrace při prodeji nebo servisu
Senzor lze kdykoliv vyměnit v autorizovaném servisu
Provedení:
M1, M2: I M1 Ex ia I Ma
Z1, Z2: II 2G Ex db ia IIC T4 Gb
Z21, Z22: II 2D Ex ia tb IIIC T87°C Db
Tyto verze Ex ia jsou přímo připojitelné k systému DPS.
Typ ochrany Ex ec (zajištěné provedení):
Z2: II 3G Ex db ec ic IIC T4 Gc
Z22: II 3D Ex tc IIIC T87°C Dc
Tyto verze Ex ec jsou přímo připojitelné k vyhodnocovací jednotce SC-CONMAX.
Oblasti použití:
- V průmyslových objektech
- V kotelnách
- V kogeneračních jednotkách
- V předávacích stanicích zemního plynu
- Lakovny, míchárny sklady hořlavin
- V tunelech a při jeji ražbě
- U uzávěrů plynu v obytných budovách
Vyráběné verze SC-CH4:
- M – senzor pro doly I, C – senzor pro chemii II, CA – senzor pro měření Amoniaku, NH3
- J – jaz. kontakty pro přepólování analog. výstupu, N – bez
- G - Vývodka, K – Konektor M12 x 8 - nelze použít pro skupinu III III, a II „ec“, T – samostatný svorkovnicový
prostor, terminal box - B – Mechanická tlačítka, nelze použít pro skupinu III a II „ec“. Pouze na zvláštní objednávku.
- skupina plynu nebo prachu – I, II, III, II db ec, III tc, max teplota okolí – +40°C nebo +50°C,
rozsah měření – max měřená koncentrace, konkrétní plyn – chemická značka
Volitelné příslušenství k SC-CH4:
- SC-KAL - Kalibrační nástavec na hlavici detektoru.
- SC-SET-CH4 - Kalibrační sada s nulovým a kalibračním plynem, obsahuje SC-KAL.
- Propojovací krabice k propojení datové komunikace a napájení ex provedení dle zapojení
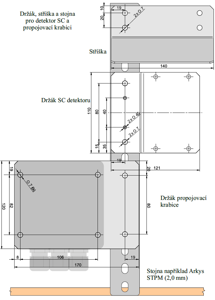
- Držák nerezový pro SC-CH4
- Držák propojovací krabice
- Nosník pro držáky pro SC-CH4 a propojovací krabice
Orientační citlivost detektoru SC-CH4-Mxxx pro různé plyny
Verze M, typ pro aplikace v uhelný dolech (skupina I) je vybavena senzorem
určeným pro měření methanu a vodíku.
|
Plyn |
Vzorec |
Relativní citlivost * |
Rel. hustota ke vzduchu |
LEL - dolní mez |
|
Methan |
CH4 |
100 |
0,55 |
4,4% |
|
Vodík |
H2 |
110 |
0,07 |
4,0% |
* Relativní citlivost je vztažená k methanu a je zaokrouhlena na nejbližších 5%
** Pro amoniak je doba odezvy T90 prodloužená. Detektor není určen pro trvalý provoz ve vysokých koncentracích NH3.
*** Tyto plyny nejsou nastavitelné na displeji
Orientační citlivost detektoru SC-CH4-Cxxx pro různé plyny a páry
Verze C, typ pro aplikace v chemickém průmyslu (skupina II) měření methanu, ethanu, propanu, butanu, pentanu, hexanu, acetylenu, oxidu uhelnatého, vodíku, amoniaku,
případně dalších spalitelných plynů.
Senzor má zvýšenou odolnost proti H2S a silikonům.
Senzor neumožňuje měření vyšších uhlovodíků, alkoholů, ketonů, esterů a sloučenin síry.
|
Plyn |
Vzorec |
Relativní citlivost * |
Rel. hustota ke vzduchu |
LEL - dolní mez |
|
Methan |
CH4 |
100 |
0,55 |
4,4% |
|
Ethan |
C2H6 |
80 |
1,04 |
3,0% |
|
Propan |
C3H8 |
65 |
1,56 |
1,7% |
|
n-Butan |
C4H10 |
65 |
2,05 |
1,4% |
|
n-Pentan |
C5H12 |
55 |
2,48 |
1,4% |
|
n-Hexan |
C6H14 |
50 |
2,97 |
1,0% |
|
Acetylén |
C2H2 |
90 |
0,90 |
2,3% |
|
Oxid uhelnatý |
CO |
120 |
0,97 |
10,9% |
|
Vodík |
H2 |
110 |
0,07 |
4,0% |
|
Amoniak** |
NH3 |
140 |
0,59 |
15,0% |
|
Cyklohexan*** |
C6H12 |
50 |
2,90 |
1,2% |
|
Ethylen*** |
C2H4 |
95 |
0,97 |
2,3% |
|
1,3-Butadien*** |
C4H6 |
60 |
1,87 |
1,4% |
* Relativní citlivost je vztažená k methanu a je zaokrouhlena na nejbližších 5%
** Pro amoniak je doba odezvy T90 prodloužená. Detektor není určen pro trvalý provoz ve vysokých koncentracích NH3.
*** Tyto plyny nejsou nastavitelné na displeji




